Na prodaju kuca sa dva stana | Saga Expert Agencija za nekretnine
SAGA EXPERT
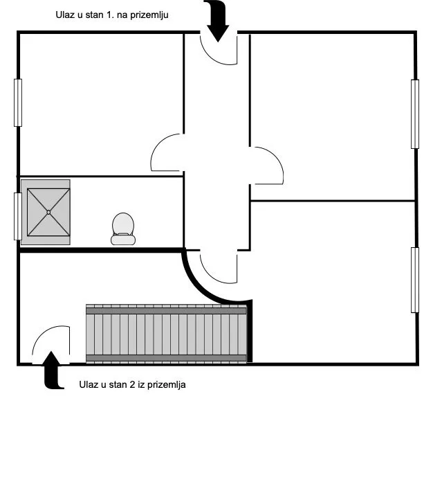
Osnova
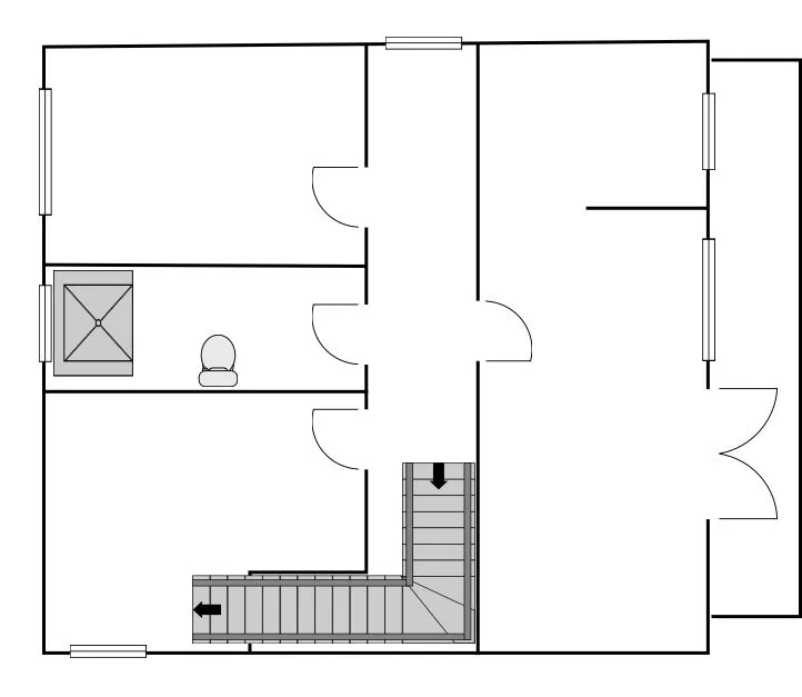
1. sprat

Na prodaju kuca sa dva stana

375.000 KM

Rata od: 2.153 KM

BiH | ID: 10053

Na prodaju kuca sa dva stana

Porodicna kuca u mirnom naselju Cesma, Banja Luka, ukupne korisne površine 155 m², sa dva odvojena stana i prelijepim panoramskim pogledom na grad. Kuća je funkcionalno organizovana i idealna za život dvije porodice ili kao investicija za izdavanje.

U prizemlju se nalazi manji stan (Stan br 1. na tlocrtu) površine cca 60 m², dok sprat (Stan br.2 na tlocrtu) obuhvata veći, potpuno renoviran stan površine oko 95 m². Gornji sprat i krov su u potpunosti obnovljeni, urađena je termoizolacija i nova fasada, dok je donji sprat u dobrom stanju i zahtijeva eventualno manja ulaganja. Potkrovlje kuće ima dobru visinu te može biti uredjeno kao dodatni stambeni prostor.

Kao dodatna pogodnost objekat ima izradjen projekat i dobijene Urbanističko Tehničke (UT) uslove za rekonstukciju postojećeg i dogradnju dodatnog dijela objekta, u koliko za to postoji potreba od strane kupca/investitora .

Osnovne informacije

Cijena po m² 2.419 KM
Kvadratura 155 m²
Struktura glavnog objekta Kuća s potkrovljem
Tip nekretnine Kuća
Tip objekta Kuća
Vrsta zemljišta Građevinsko
Broj stanova u kući 2
Stanje nekretnine Renovirana
Godina gradnje 1981-1990
Namještenost Namješten
Površina zemljišta 563 m²
Broj soba 0.0
Spavaće sobe 4
Broj kupatila 2
Visina plafona (m) Na upit
Energetski razred A
Tip gradnje Zidana
Grijanje Struja
Stolarija Kombinovano
Vrsta poda Parket
Orijentacija Jugozapad
Dozvoljena gradnja Na upit
Parking Vanjski parking
Dodatni prostor na raspolaganju Vanska ostava za deva
Parking 2
Garažna mjesta Na upit
Površina parkinga/garaže (m²) Na upit
Tip pomoćnog objekta/prostora Ostava
Površina pomoćnih objekata/ostava (m²) Na upit
Useljivo od / Raspoloživo od Odmah
Lift Na upit
Posljednji put renovirano 2024
Stvari koje su renovirane Na upit

Pravni status i uslovi prodaje

Pravni status (Uknjiženo) Da
Građevinska dozvola Na upit
Upotrebna dozvola Da
Vlasnička dokumentacija Uredna
Tereti Bez opterećenja
Hitnost prodaje Normalno
Mogući načini plaćanja Kombinovano, Kredit
UT uslovi Da
UT uslovi validni do Na upit

Sadržaji

Balkon
Internet
A/C konvektori
Frižider
Kamin
Mašina za suđe
Priključak struja
Priključak voda
Priključak kanalizacije
Pristup s asfaltnog puta
Šporet
Televizor
Veš mašina
WiFi
Parking

Ovo je popis najbitnijih stvari. U nekretnini se mogu nalaziti i predmeti koji nisu navedeni na ovom spisku.

Lokacija

Tačna lokacija će biti prosljeđena nakon što razgledanje nekretnine bude zakazano.

Napomena

Ukoliko je ova nekretnina na nekom drugom mjestu oglašena sa nižom cijenom, koju je prethodno odobrio vlasnik nekretnine, niža cijena takođe važi i u našoj ponudi.

Kreditni kalkulator

Rata od:
%
%

Iznos kamate

Učešće

Ukupan iznos kredita

Ukoliko želite da dobijete informacije o približnoj rati kredita, najbrže rješenje je kreditni kalkulator. Potrebno je da unesete iznos učešća, željeni period otplate i kamatu i tako jednim klikom možete doći do visine mjesečne rate kredita. Međutim, ova brza metoda obračuna je i neprecizna jer vam ne može dati odgovor na sva pitanja o kreditiranju i ne može da pronađe najbolju bankarsku ponudu.

Ekskluzivne nekretnine

Pogledaj sve
146.000 KM

Rata od: 838 KM

Prodaja • Stan

Centar, Banja Luka


Stan 40 m² Dvosoban
Cijena na upit

Izdavanje • Kuća

Kočićev Vijenac/Hisete, Banja Luka


Kuća 180 m² 5+ soba
Cijena na upit

Izdavanje • Stan

Centar, Banja Luka


Stan 103 m² Trosoban
Cijena na upit

Prodaja • Stan

Banja Luka


Stan 80 m² Trosoban
1.100 KM

Izdavanje • Stan

Centar, Banja Luka


Stan 110 m² Četvorosoban
Cijena na upit

Prodaja • Kuća

Laktaši


Kuća 1.200 m²

Druga slična nekretnina

Pogledaj sve
146.000 KM

Rata od: 838 KM

Prodaja • Stan

Centar, Banja Luka


Stan 40 m² Dvosoban
Cijena na upit

Izdavanje • Kuća

Kočićev Vijenac/Hisete, Banja Luka


Kuća 180 m² 5+ soba
Cijena na upit

Izdavanje • Stan

Centar, Banja Luka


Stan 103 m² Trosoban
300.000 KM

Rata od: 1.723 KM

Prodaja • Stan

Centar, Banja Luka


Stan 77 m² Trosoban
Cijena na upit

Prodaja • Stan

Centar, Banja Luka


Stan 50 m² Trosoban
Cijena na upit

Izdavanje • Stan

Centar, Banja Luka


Stan 149 m² 5+ soba

Izdvojene oglasne prodaje

Pogledaj sve
146.000 KM

Rata od: 838 KM

Prodaja • Stan

Centar, Banja Luka


Stan 40 m² Dvosoban
Cijena na upit

Izdavanje • Kuća

Kočićev Vijenac/Hisete, Banja Luka


Kuća 180 m² 5+ soba
Cijena na upit

Izdavanje • Stan

Centar, Banja Luka


Stan 103 m² Trosoban
300.000 KM

Rata od: 1.723 KM

Prodaja • Stan

Centar, Banja Luka


Stan 77 m² Trosoban
295.000 KM

Rata od: 1.694 KM

Prodaja • Kuća

Laktaši


Kuća 300 m² Jednosoban
Cijena na upit

Prodaja • Stan

Centar, Banja Luka


Stan 50 m² Trosoban

Istražite naše gradove

Procjena vrijednosti nekretnine — brzo i besplatno

Uporedite ovaj oglas sa okvirnom tržišnom vrijednošću: besplatna procjena na osnovu stvarnih podataka o lokaciji i karakteristikama.

Kreditni savjetnik

Potrebna vam je pomoć oko kredita? Potpuno besplatno!

Kreditni savjetnik vam može dati odgovore na sva pitanja u vezi sa kreditima za stan i ostalim kreditima.


ili pozovite kreditnog savjetnika na broj

+387 51 963 960

Često postavljana pitanja

Šta znači dostupnost 24/7?

Dostupnost 24/7 znači da naš sistem i platforma rade za vas bez pauze, u bilo koje doba dana ili noći. Možete pristupiti bazi nekretnina, pregledati opise i fotografije te poslati zahtjev za zakazivanje razgledanja u bilo kom trenutku.

Šta je online pretraga nekretnina?

Online pretraga omogućava da pregledate ponudu nekretnina putem naše platforme, filtrirate po lokaciji, cijeni, tipu nekretnine i drugim kriterijima. Sve informacije su dostupne 24/7 bez potrebe za fizičkim posjetom agenciji.

Kako online agencija pomaže u pregovorima?

Naš tim posreduje između kupca i prodavca putem telefona, emaila ili video poziva. Pomažemo u dogovoru oko cijene, uslova plaćanja i ostalih detalja transakcije.

Zašto agent ne prisustvuje razgledanju stana?

Online model omogućava da razgledanje organizujete direktno sa vlasnikom, što je brže i fleksibilnije. Agent je dostupan za sva pitanja prije i poslije razgledanja putem telefona ili online.